海绵城市如何在住宅项目落地
解决城市缺水问题,必须顺应自然。优先考虑更多利用自然力量排水,建设自然积存、自然渗透、自然净化的“海绵城市”。——习近平《中央城镇化工作会议》的讲话
近年来,国务院和各地政府相继出台关于“海绵城市”试点及落地的政策,南京市也于今年印发关于《南京市海绵城市施工图设计(建筑工程、市政工程)文件审查要点》(试行)的通知,今天小编就带大家从概念、技术措施、施工要点等几个方面来认识认识“海绵”~~~
一、海绵城市解读
“海绵城市”指城市能够像“海绵”一样,在适应环境变化和应对自然灾害等方面具有良好的“弹性”,下雨时渗水、蓄水、滞水、净水,下雨后或需要时将蓄存的水“释放”或加以利用。


小编先带你看看咱们南京区域落地的实际案例吧~
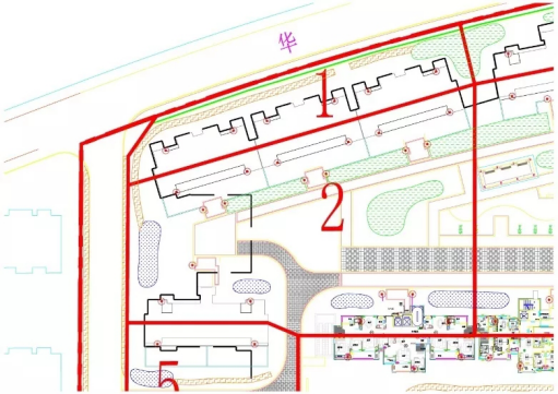
二、设计案例——镇江新乐府
海绵设施布置平面

项目区域主要利用雨水花园、下沉式绿地、透水铺装、雨水花坛和雨水回用设施对初期雨水进行源头净化。结合雨落管和道路竖向合理设置雨水花园和下凹式绿地,将停车位设置为透水铺装,同时在18#建筑北侧设置雨水回用设施,回用于小区绿化和道路浇洒。
分区详细设计

建筑雨水立管散排,结合雨落管位置和地表竖向设置传输草沟、下凹式绿地和雨水花园。建筑北侧屋面雨水经传输草沟导流至末端的雨水花园和下凹式绿地进行源头净化;建筑南侧为私人庭院,院落内的雨水散排并经排水沟导流至下凹式绿地滞蓄净化。

子汇水区4主要为景观铺装,结合景观需求设置雨水花园和下凹式绿地,并采用碎石沟将路面雨水导流至末端的雨水花园和下凹式绿地集中处理。

子汇水区13为商业铺装,将部分硬质铺装设置为透水铺装,屋面雨水通过小方井排至透水铺装,经透水铺装滞蓄后接入雨水管道系统。并在硬质铺装上间隔设置雨水花坛,收集处理硬质地面雨水径流。
23-1子汇水区总面积2280㎡,其中道路面积1440㎡,绿化面积880㎡,综合径流系数0.65。道路西侧红线距围墙1.7m,道路东侧红线距围墙1.2m。

在道路两侧设置传输型草沟,宽1.2m,将路面雨水径流导流至末端的雨水花园集中处理。雨水花园面积144㎡,调蓄雨量55.69,控制雨量37.82mm,对应的年径流总量控制率86.88%。
OK,那看完案例,你是不是对“海绵”的具体措施更加感兴趣了呢,别着急,小编为你娓娓道来~
三、海绵设施模块简介
海绵设施模块分类

雨水花园:底标高比周边地面低30cm。结构分为覆盖层、换填层和碎石层三部分。覆盖层位于土壤表层,有助于保持土壤水分,并提供适合土壤生物群生存的环境;换填层土壤厚度为50cm,碎石层厚度为30cm,碎石层内设置盲管,盲管就近接入溢流雨水口/井。雨水花园低点位置处设置溢流雨水口,溢流口标高比周边地面低10cm。

下沉式绿地:沟底标高比周边地面低25cm,主要布置在绿化面积较小、地下管线较多区域。下沉式绿地内设溢流雨水口,溢流雨水口低于周边地面10cm,高于下沉式绿地沟底15cm。为促进雨水入渗,防止雨水长时间蓄积,设计下沉式绿地均行局部换填,且设有防渗土工膜及盲管,换填区域结构参见雨水花园。

转输型草沟:主要作用为传输径流,将屋面和道路雨水径流导流至雨水花园集中处理。转输型草沟底部不需换土,坡向末端LID设施。种植要求高度为50~100mm左右的常绿草皮。
海绵设施模块大样
雨水花园模块

下沉式绿地

输入型草沟

透水铺装

雨水花坛

“海绵”在实施过程中有哪些注意要点呢,请继续往下看吧→→→
四、实施要点
竖向衔接
(1)施工时,应注重场地及设施的竖向衔接,海绵设施应位于汇水分区内最低点。
(2)溢流雨水口低于周边地面10cm,以防止雨量过大或者溢流口堵塞导致场地积水。
放样
(1)海绵设施可根据现场实际情况调整其形状、位置。
(2)海绵设施建议采用自然缓坡型、网格放样或定点放样等方式。
开挖
(1)基坑开完应在主体建设工作完成,施工设备和材料土堆已经移除且集水区稳定后。
(2)基坑开挖完成后,应及时清理周边挖出的土方,避免土方坍塌掉入基坑。
素土夯实
(1)素土夯实度不宜小于87%,且应保持内部平整;
(2)核对完成面标高、溢流口标高,确保竖向上与周边道路、绿地和铺装顺利衔接。
回填
(1)在施工时应避免压实生物过滤介质,建议土壤分层回填,每层300mm左右高度。
(2)施工结束后检查出入口标高及生态滞留设施所有标高与设计相符,误差不超过5%。
(3)换填层采用的混合土组分定为:40%粗砂+40%种植土+20%椰糠(按体积算)。
溢流雨水口
(1)雨水花园和下沉式绿地中设置溢流雨水口,溢流雨水口低于周边地面10cm。
(2)雨水口采用国标砖砌平篦式雨水口,详见国标06MS201-8,增设落底0.3米。
(3)井盖采用特制成品溢流井盖,周围应散铺卵石(30-50mm),起到沉淀杂质,缓冲径流的作用。
排水盲管
(1)雨水花园和下沉式绿地碎石层中设置排水盲管,盲管采用FH100软式透水管。
(2)排水盲管坡度宜不小于0.5%,保证过滤后的雨水顺利排出,同时盲管管顶应不低于溢流井出流管管顶。

防渗膜
(1)防渗处理采用土工复合材料,建议采用“两布一膜”,防渗采用的土工合成材料。
(2)土工膜可采用型号M1.5,纵横向抗拉强度≥17kN/m,无纺土工布织物单位面积质量宜为300~500g/m2,握持强度≥1.1kN/m,撕裂强度≥0.4kN/m,CBR顶破强度≥2.75kN/m,厚度不小于0.5mm。
(3)在使用土工布和衬垫时,应仔细安装、防止损坏,并确保安装时材料边缘重叠厚度至少15mm。