海绵城市|透水场地 你知道吗?

海绵城市|透水场地 你知道吗?

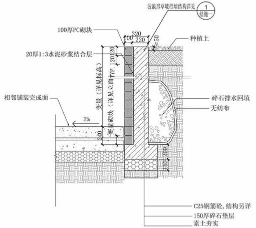
透水场地海绵城市中的运用广泛不言而喻,庭院、公园、广场、道路等都随处可见。透水场地石海绵城市建设中最基本的组成部分。让城市生态化,可对空气有降温增湿的效果从而优化空气质量;可对土壤保留水分降低土温,提高土壤质量。同时还可以减少城市噪音等等。有如一个生态链,存在我们生活的城市中是一件多么美好的事。

我们习惯看到表象的好用,却忽略了其中的所以然,小编不以文字阐述,希望一下的施工图能让你找到答案。